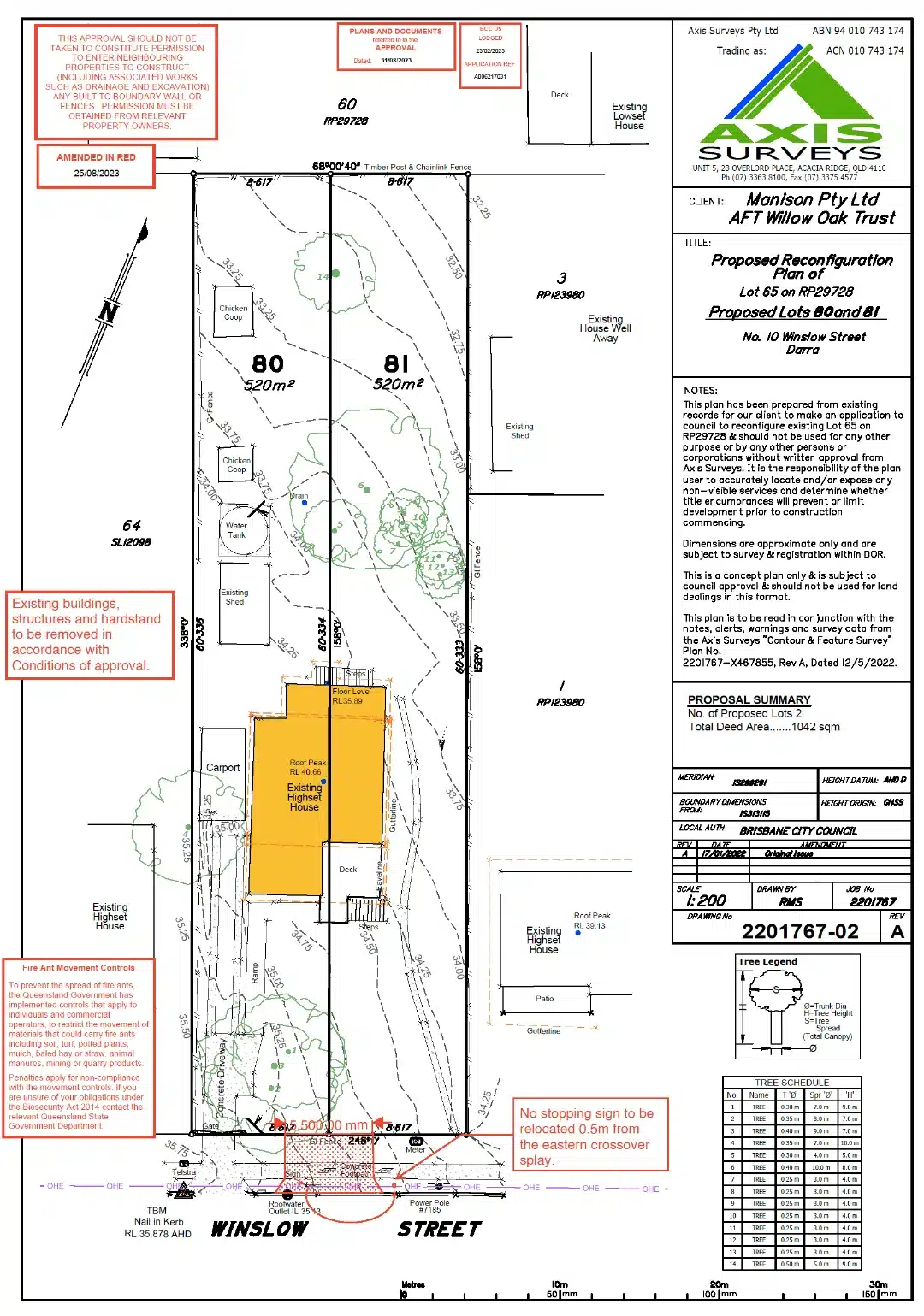
Town planning approval was obtained by others for this 2-lot subdivision in Darra.
The client lived in Sydney and needed a company to project manage the delivery of the subdivision. Managing subdivisions for interstate clients is a speciality of ours.
This project presented many challenges. These included neighbour consultation and fence disputes, noise and disruption, retaining wall design and construction.
Our responsibilities included:
- developing and implementing a project plan
- budgeting and costs
- tendering and civil contractor selection
- management of civil contractor
- neighbour consultation and negotiation
- build over asset
Year: 2024
Project: 2 Lot Subdivision
Council: Brisbane City
Services: Town Planning | Project Management |Plan Sealing

